Задача
Дом №6 на проспекте Динамо - это жильё премиум класса прямо на берегу Невы в элитном районе Санкт-Петербурга. На территории дома есть небольшая гостевая парковка и подземный паркинг. Прямо напротив дома находится крупная больница с паркингом всего на 10-15 мест, в то время как на самом пр. Динамо парковаться запрещено. При такой транспортной ситуации необходимо было обеспечить контроль доступа на внутреннюю парковку, чтобы жильцы и гости могли комфортно парковаться рядом с домом.
Требования
- Ограничение доступа автомобилей
- Свободный вход и выход для пешеходов
- Свободный проезд для велосипедов и пешеходов с колясками
- Привлекательный внешний вид
- Скорость работы
- Надёжность
Решение
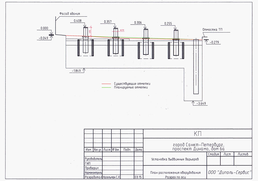
С учетом всех требований, единственным решением стала установка боллардов. Учитывая ширину проезда (8,3 м) и рекомендации производителя по монтажу, было принято решение установить 4 болларда на расстоянии 1,5 метров друг от друга.
Оборудование
- Электромеханические болларды BFT Stoppy MBB 220/500 — 4 шт.
- Блок управления боллардами PERSEO — 1 шт.
- Фотоэлементы BFT Cellula 130 — 4 шт.
- Стойки для фотоэлементов Cellula 130
Результат
Работы выполнена качественно и в кратчайшие сроки. Боларды работают исправно, парковка на внутренней территории свободна от постороннего транспорта. У каждого жильца дома есть брелок для открытия болларда. А для посетителей проезд открывает консьерж дома (с брелка/пульта управления). Заказчик высоко оценил нашу работу.
- Срок выполнения работ: 14 дней
- Дата выполнения работ: март 2015 г.
